Braillestraat 35

2652XV Berkel En Rodenrijs

Beschikbaar

€ 1.600,- p/m

Omschrijving

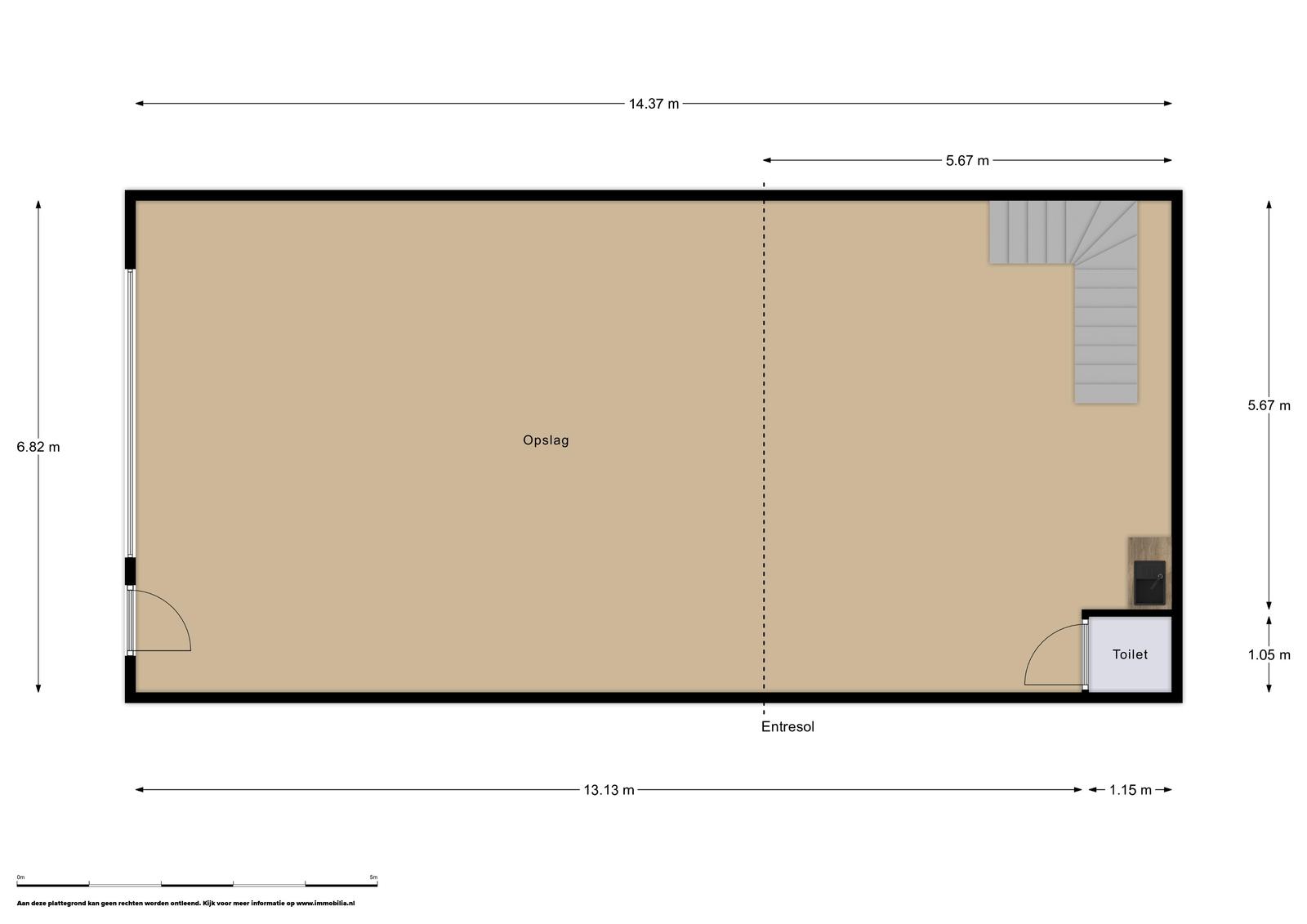
Immobilia presenteert een bedrijfshal met entresol van in totaal ca. 140m2 met een overheaddeur en twee (2) eigen parkeerplaatsen. De bedrijfshal is centraal gelegen op bedrijventerrein Oudeland in Berkel en Rodenrijs.
AUTOBEDRIJVEN/GARAGE ZIJN NIET TOEGESTAAN.

Begane grond:
Bedrijfshal van ca. 108m2 met pantry, toilet en trap naar 1e verdieping. De bedrijfshal is te bereiken via een loopdeur en overheaddeur. De overheaddeur is ca. 4 meter hoog en 4 meter breed. Door de hoekligging is er eigen terrein aanwezig.

De hal is voorzien van vloerverwarming middels aardwarmte.

Entresol:
De entresol meet ca. 38m2 en ligt aan de achterzijde van de bedrijfshal en heeft middels een raam daglichttoetreding via de zijkant. Vanaf de entresol heb je zicht op de hal.

Bijzonderheden:
- Overheaddeur van 4 meter breed en 4 meter hoog.
- Verwarming middels aardwarmte en vloerverwarming.
- Twee (2) eigen parkeerplaatsen.
- Omliggend terrein is tegen een meerprijs te huren.

Vloerbelasting:
- Begane grond: 1.500 kg per m2.
- 1e verdieping: Beton 500 kg per m2.

Huurspecificaties:
Huurprijs:
€ 19.200,- per jaar excl. btw.

Huurtermijn:
In overleg met verhuurder.

Huuringangsdatum:
Beschikbaar per direct.

Huurprijsherziening:
Jaarlijks op basis van de CPI-index van het CBS

Huurbetaling:
Per maand vooruit.

Nutsvoorzieningen:
Huurprijs excl. G/W/L

Servicekosten:
N.v.t.

Bankgarantie/waarborgsom:
Drie maanden huur excl. BTW

Huurovereenkomst:
Conform model ROZ.

BTW:
Verhuurder wenst te opteren voor BTW-belaste huur en verhuur. Ingeval huurder de BTW niet kan verrekenen zal de huurprijs worden verhoogd ter compensatie van de gevolgen van het vervallen van de mogelijkheid om te opteren voor BTW-belaste huur.

Kenmerken

Media

Locatie

Meer informatie?