Celsiusstraat 23

2652XN Berkel En Rodenrijs

Beschikbaar

€ 1.570,- p/m

Omschrijving

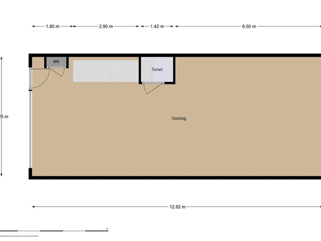
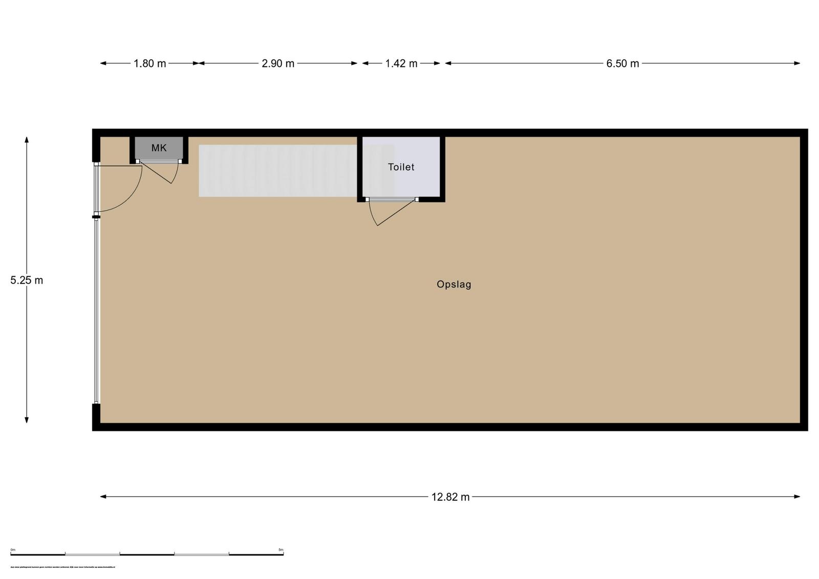
Immobilia presenteert een volledig nieuwe multifunctionele bedrijfshal van in totaal 140m2 (BVO), inclusief een toilet, bestaande uit een begane grond en een verdieping met betonnen verdiepingsvloer, voorzien van een dekvloer. De bedrijfshal beschikt over een handbediende overheaddeur en twee (2) eigen parkeerplaatsen. Centraal gelegen op een nieuw bedrijventerrein in Berkel en Rodenrijs. Op enkele autominuten afstand van de A13 en Rotterdam The Hague Airport.
AUTOBEDRIJVEN/GARAGE ZIJN NIET TOEGESTAAN.

Begane grond:
Bedrijfshal van ca. 67m2 met toilet en trap naar 1e verdieping. De bedrijfshal is te bereiken via een loopdeur en overheaddeur. De overheaddeur is ca. 3,50 meter hoog en 3,40 meter breed. Voor de deur liggen twee parkeerplaatsen die horen bij de bedrijfshal.
Het toilet is eenvoudig en is uitgevoerd met een fonteintje.

1e Verdieping:
Open (kantoor)ruimte van ca. 67m2 met aan de voorzijde een grote raampartij. Bereikbaar middels een trap vanuit de hal.

Bijzonderheden:
- Voorzien van krachtstroom.
- De verdiepingsvloer is voorzien van een dekvloer.
- Overheaddeur van 3,40 meter breed en 3,50 meter hoog.
- Twee (2) eigen parkeerplaatsen.
- Er is geen gasaansluiting aanwezig.
- De unit is volledig nieuw en nog niet eerder gebruikt.

Vloerbelasting:
- Begane grond: 1.500 kg per m2.
- 1e verdieping: Beton 500 kg per m2.

Huurspecificaties:
Huurprijs:
€ 18.840,- per jaar excl. btw.

Huurtermijn:
In overleg met verhuurder.

Huuringangsdatum:
Beschikbaar per direct.

Huurprijsherziening:
Jaarlijks op basis van de CPI-index van het CBS

Huurbetaling:
Per maand vooruit.

Nutsvoorzieningen:
Huurprijs excl. G/W/L

Servicekosten:
€ 50,- per maand excl. BTW.

Bankgarantie/waarborgsom:
Drie maanden huur excl. BTW

Huurovereenkomst:
Conform model ROZ.

BTW:
Verhuurder wenst te opteren voor BTW-belaste huur en verhuur. Ingeval huurder de BTW niet kan verrekenen zal de huurprijs worden verhoogd ter compensatie van de gevolgen van het vervallen van de mogelijkheid om te opteren voor BTW-belaste huur.

Kenmerken

Media

Locatie

Meer informatie?