Dirk Verheulweg 8

2742JR Waddinxveen

Beschikbaar

€ 325,- p/m

Omschrijving

Immobilia presenteert drie opslagunits die deel uitmaken van project BPA12 in Waddinxveen. Het betreft hier één unit op de begane grond van 20m2 en twee units van 17m2 gelegen op de eerste verdieping. Bereikbaar middels een trap en goederenlift met een capaciteit van maximaal 750 kg.
BPA12 ligt op een toplocatie in Waddinxveen, op slechts 1 minuut rijden van de A12. Afslag Waddinxveen ligt centraal tussen Gouda en Zoetermeer. Het centrum van Waddinxveen is binnen enkele minuten te bereiken. De opslagboxen zijn 24/7 beveiligd door middel van een camerasysteem. Gelegen op een afgesloten terrein en altijd toegankelijk middels een automatische schuifpoort.

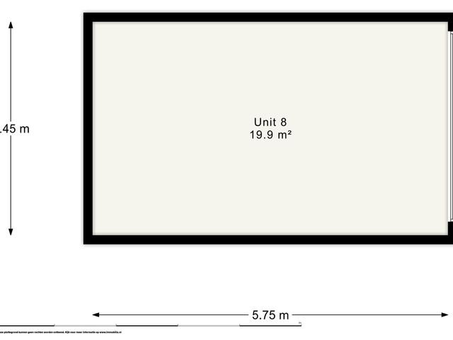
Unit 8:
Ca. 20m2 en gelegen op de begane grond. Vanaf het buitenterrein bereikbaar en toegankelijk middels een hand bedienbare overheaddeur. De unit is voorzien van verlichting, elektrapunten en een hand bedienbare overheaddeur. De afmetingen van de box zijn circa: 2,24 x 3,45 x 5,75 (H x B x D).

Unit 10d:
Ca. 17m2 en gelegen op de eerste verdieping. Bereikbaar middels een trap en een goederenlift. De unit is voorzien van verlichting, elektrapunten en een hand bedienbare overheaddeur. De afmeting bedragen 1,96 x 3,39 x 5,00 (H x B x D).

Unit 10e:
Ca. 17m2 en gelegen op de eerste verdieping. Bereikbaar middels een trap en een goederenlift. De unit is voorzien van verlichting, elektrapunten en een hand bedienbare overheaddeur. De afmeting bedragen 1,96 x 3,39 x 5,00 (H x B x D).

Algemeen:
Op de begane grond van het complex tref je een ruimte waarin zich een tweetal toiletten bevinden incl. fonteintje. Tevens is er een uitstortgootsteen aanwezig.

Bijzonderheden:
- Afgesloten terrein middels een poort.
- Inschrijven op het adres is mogelijk incl. eigen postbus bij de entree.
- Voorzien van led verlichting en elektrapunten.
- Voorzien van een hand bedienbare deur.

Huurcondities:
Huurprijs unit 8:
€ 3.900,- per jaar excl. BTW.

Huurprijs unit 10d:
€ 2.340,- per jaar excl. BTW.

Huurprijs unit 10e:
€ 2.340,- per jaar excl. BTW.

Servicekosten:
Bijdrage servicekosten € 25,- per maand excl. BTW per unit.

Huurtermijn:
Minimaal 12 maanden.

Huuringangsdatum:
Per direct beschikbaar.

Huurprijsherziening:
Jaarlijks op basis van de CPI-index van het CBS.

Huurbetaling:
Per maand vooruit.

Waarborgsom:
Drie (3) maanden huur incl. BTW.

Huurovereenkomst:
Conform model ROZ.

BTW:
Verhuurder wenst te opteren voor BTW-belaste huur en verhuur. Ingeval huurder de BTW niet kan verrekenen zal de huurprijs worden verhoogd ter compensatie van de gevolgen van het vervallen van de mogelijkheid om te opteren voor BTW-belaste huur.

Op zoek naar een opslagunit gelegen op een unieke locatie? We maken graag een afspraak voor een bezichtiging!

Kenmerken

Media

Locatie

Meer informatie?