Dotterbloemstraat 13

3053JV ROTTERDAM

Beschikbaar

€ 2.500,- p/m

Omschrijving

Immobilia presenteert een multifunctionele bedrijfsruimte met entresol en een apart kantoor gelegen op de eerste verdieping. Het pand meet totaal ca. 245m2 BVO. Op de eerste verdieping boven de entree van het afgesloten buitenterrein, bevindt zich nog eens ca. 39m2 kantoorruimte. Het pand is gelegen op bedrijventerrein “Schiebroek”. Gelegen in directe nabijheid van de N209 (Doenkade) met zeer goede verbindingen naar de rijksweg A13 richting Den Haag, Utrecht, Breda en Amsterdam. Tevens bevindt RandstadRail station (Berkel Westpolder) zich op 10 minuten loopafstand.

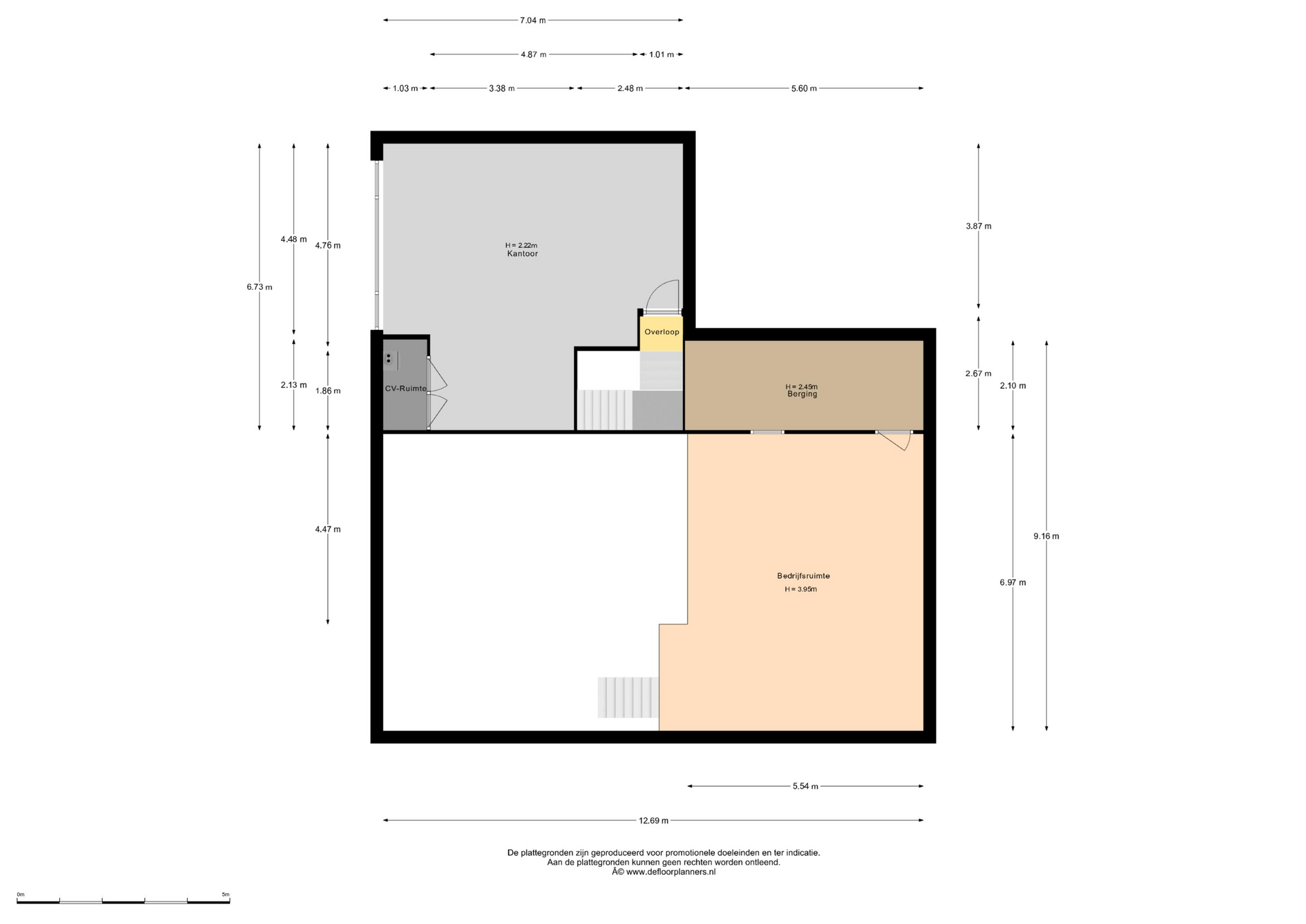
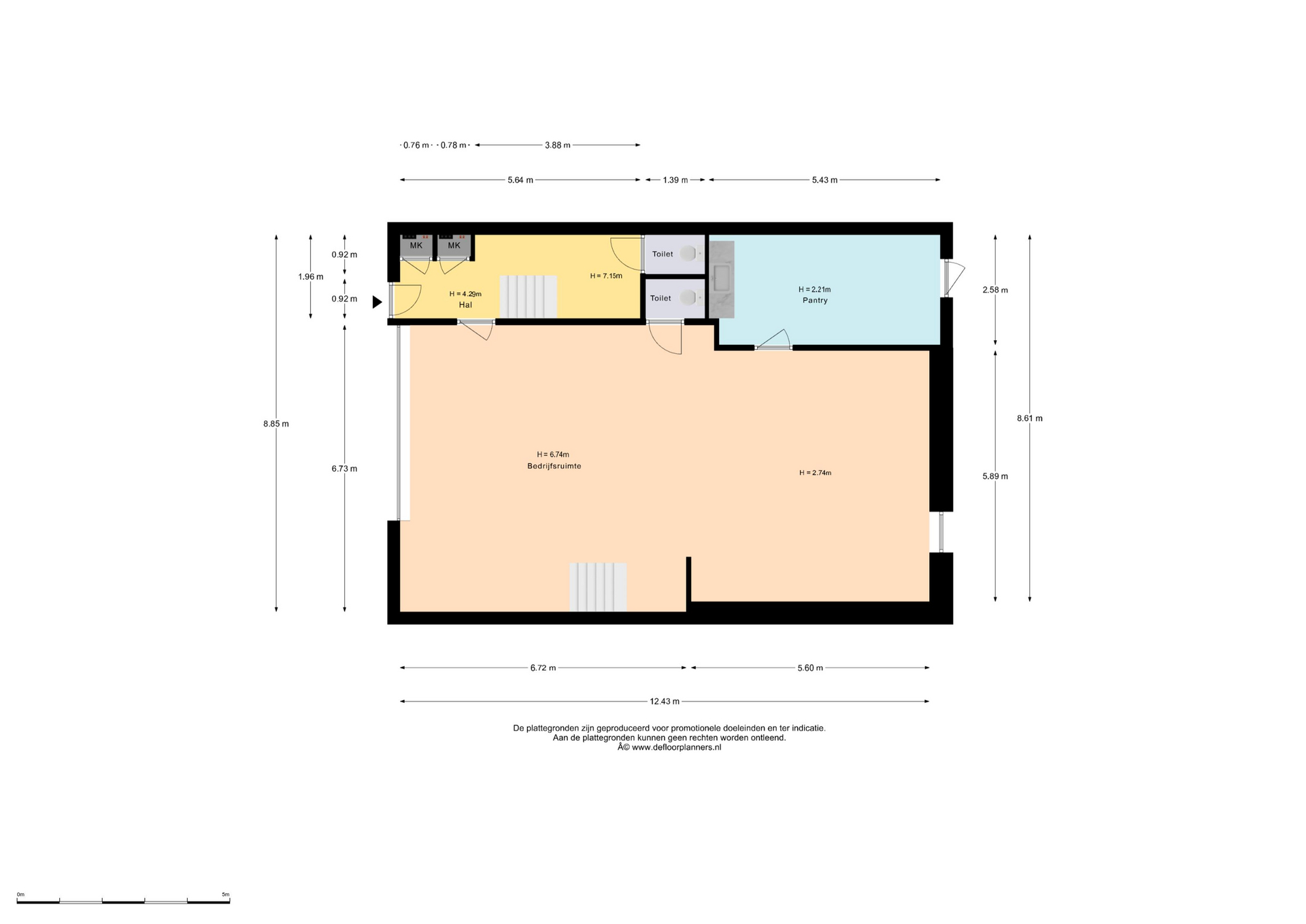
Begane grond:
Entree in de hal met toegang tot de bedrijfshal, de eerste verdieping en een apart toilet. De lichte bedrijfshal heeft een grote lichtstraat en heeft een maximale hoogte van 6,74 meter. De hal is tevens toegankelijk via een elektrisch bedienbare overheaddeur. Vanuit de hal toegang tot de keuken/kantine van ca. 14m2. Tevens een apart toilet bereikbaar vanuit de hal.
Aan de achterzijde van de hal is een houten entresol vervaardigd, bereikbaar middels een trap. Vanaf de entresol toegang tot een berging van ca. 12m2.

1e Verdieping:
Via de trap toegang tot de kantoorruimte. Het kantoor meet ca. 40m2 en heeft een grote raampartij aan de voorzijde. Systeemplafond met led verlichting en een keukenblok uitgevoerd met een koelkast. De vloer is voorzien van een laminaatvloer.

Bijzonderheden:
- Vrije hoogte van ca. 6,3m in de bedrijfsruimte.
- Heather in de bedrijfsruimte.
- Elektrische overheaddeur.
- Lichtstraat in de bedrijfsruimte.
- Twee toiletgroepen met fonteintje, beide gelegen op de begane grond.
- Pantry/kantine op de begane grond.
- Systeemplafond met inbouw verlichtingsarmaturen in de kantoorruimte.
- Centrale verwarming middels radiatoren in de kantoorruimte.

Parkeren:
Parkeergelegenheid voor de overheaddeur en langs de openbare weg.

Bereikbaarheid:
Auto:
In de directe omgeving bevinden zich de op- en afritten van de snelweg A20 (Rotterdam Noord en Rotterdam Centrum) met directe verbindingen richting Dordrecht, Breda, Utrecht, Den Haag en Amsterdam. De ring van rijkswegen (A20, A16, A4 en A 15) rond Rotterdam bereik je binnen 5 autominuten.

Openbaar vervoer:
De openbaar vervoer voorzieningen zijn zeer goed te noemen, tram 25 en bus 35 zijn op 5 minuten loopafstand. Het RandstadRail station (Berkel Westpolder) zich op 10 minuten loopafstand.

Ligging:
Nabij Rotterdam, Zoetermeer, Rotterdam Airport en de veiling Bleiswijk is het industrieterrein gelegen.

Huurprijs:
Huurprijs: € 2.500,– per maand excl. BTW en servicekosten.

Servicekosten:
Bijdrage servicekosten € 50,- per maand excl. BTW.

Huurtermijn:
- In overleg.

Huuringangsdatum:
- Per direct.

Huurbetaling:
- Per maand vooruit.

Bankgarantie:
- Ter grootte van een betalingsverplichting van drie maanden huur en BTW.

Huurprijsherziening:
Jaarlijks op basis van de CPI-index van het CBS.

Huurovereenkomst:
Conform model ROZ.

BTW:
Verhuurder wenst te opteren voor BTW-belaste huur en verhuur. Ingeval huurder de BTW niet kan verrekenen zal de huurprijs worden verhoogd ter compensatie van de gevolgen van het vervallen van de mogelijkheid om te opteren voor BTW-belaste huur.

Kenmerken

Overdracht

Aangeboden sinds
4 december 2025
Status
Beschikbaar
Aanvaarding
Direct

Bouw

Hoofdfunctie
Bedrijfsruimte
Soort bouw
Bestaande bouw
Bouwjaar
2000

Oppervlakten

Oppervlakte
206 m²
Bedrijfshaloppervlakte
206 m²
Vrije hoogte
670 m
Perceel
607 m²

Indeling

Voorzieningen
Lichtstraten, overhead deuren, krachtstroom, betonvloer, heater, toilet en pantry

Omgeving

Bereikbaarheid
Bushalte op 3000 m tot 4000 m, Metrohalte op 1500 m tot 2000 m, Snelwegafrit op 500 m tot 1000 m en Tramhalte op 3000 m tot 4000 m
Lokale voorzieningen
Bank op 3000 m tot 4000 m, Restaurant op 3000 m tot 4000 m en Winkel op 3000 m tot 4000 m

Parkeergelegenheid

Parkeerplaatsen
2 niet-overdekte parkeerplaatsen

Media

Locatie

Meer informatie?