Kerksingel 27

2651CC Berkel En Rodenrijs

Beschikbaar

€ 369.500,- k.k.

Omschrijving

Immobilia is proud to offer a unique multifunctional space in the centre of Berkel en Rodenrijs. The space was thoroughly renovated in 2022 and expanded by no less than 80m², bringing the total surface area to 169m². The space is spread over two floors and finished with high-quality materials, giving it a stylish and modern look. It can be used as a shop, practice or office space.

In the immediate vicinity of the centre, you will find Kruidvat, Action, Hoogvliet and Aldi, as well as small-scale specialist shops that fit in with the friendly atmosphere that has been so characteristic of Berkel en Rodenrijs for years. Free parking is available at various locations around the centre, as well as in the car park where a blue zone applies. Are you looking for retail, practice or office space that is ready to move into and has a luxurious look and feel? Then look no further and come and view it now!

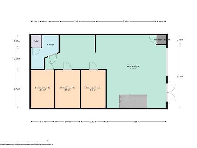
Ground floor:
Upon entering, you will find yourself in a modern retail space, which currently also houses a beauty salon. The salon has three treatment rooms, each measuring approximately 9m², ideally equipped for various beauty treatments. All rooms are equipped with a kitchen unit with sink and water connection. The space in between also has a separate water connection for a hairdressing chair, for example, and a small kitchen unit with a sink and water connection. At the rear, you will find a storage room with a toilet, pantry and connections for a washing machine and dryer. The toilet is fully tiled with white wall tiles and grey floor tiles.

Stairs to the basement.

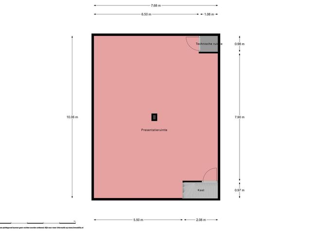
Basement:
Attractive space of approx. 77m² with a ceiling height of approx. 2.20 metres and a concrete floor. Ideal for multifunctional purposes.

Details:
- Three (3) treatment rooms of approx. 9m² each. Dimensions 2.40 x 3.60 metres.
- The ground floor has a concrete-look PVC floor.
- Located in the centre of Berkel en Rodenrijs.
- Basement area of approx. 77m² with a headroom of approx. 2.20 metres.

---
Front width:
Approx. 7 metres.

Parking:
Free parking is available at various locations around the centre, as well as in the car park where a blue zone applies.

Condition of delivery:
The retail space will be delivered in consultation or in shell condition.

Service charges:
€975 per year VvE contribution.

Delivery date:
In consultation and in the presence of a solicitor to be appointed by the buyer.

Deposit:
Upon signing the purchase agreement, the seller will request a deposit of 10% of the purchase price to be paid into the solicitor's third-party account.


Explanation of NEN 2580:
The measurement instructions are based on NEN 2580. The measurement instructions are intended to apply a more uniform method of measurement to provide an indication of the usable area. The measurement instructions do not completely rule out differences in measurement results, for example due to differences in interpretation, rounding off or limitations in performing the measurement. The attached floor plans have been measured in accordance with the measurement instructions.

All information provided should be regarded as an invitation to make an offer or to enter into negotiations. No rights can be derived from this information.

Kenmerken

Media

Locatie

Meer informatie?