Rodenrijseweg 297

2651BS Berkel En Rodenrijs

Beschikbaar

€ 1.750,- p/m

Omschrijving

Multifunctionele bedrijfsruimte/winkelruimte te huur van ca. 198m2 BVO gelegen in Berkel en Rodenrijs, nabij uitvalswegen A12 en A13. Nu in gebruik als beauty-/kapsalon en beschikt over diverse behandelkamers. Naast het pand zijn een zestal eigen parkeerplaatsen gelegen. Vanuit de centrale ruimte is er toegang tot een tweetal toiletten en een keuken/pantry.

Gebruiksmogelijkheden:
Detailhandel / woon/werk en gedestilleerd toegestaan.

Indeling:
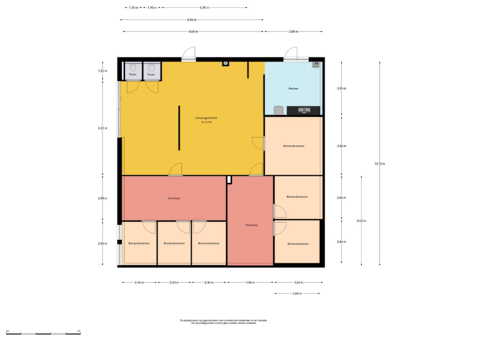
Drie eigen toegangsdeuren, één schuifpui en twee loopdeuren. De ruimte is in totaal ca. 185m2 (VVO) en heeft een indeling met toegang tot een zevental ruimtes. Ontvangstruimte met een balie en tevens toegang tot de tweetal toiletten. Van het centrale gedeelte toegang tot diverse ruimtes. De ruimtes variëren in grootte van ca. 6m2 tot 70m2. Alle ruimtes zijn uitgevoerd met een witte laminaat tegelvloer voorzien van vloerverwarming.

De keuken/pantry is ca. 14m2 en is uitgevoerd met een crème kleurig keukenblok en tevens aansluitingen voor een wasmachine.

Bijzonderheden:
- Perfect voor een (beauty)salon met iin totaal zes (6) behandelkamers.
- Deur aan de linkerzijkant van het bedrijfspand waar goederen eventueel naar binnen kunnen worden gebracht.
- Zes (6) parkeerplaatsen aanwezig op eigen terrein.
- De gehele ruimte is voorzien van vloerverwarming.
- Voorzien van twee (2) toiletten.
- Multifunctionele ruimte te gebruiken voor diverse doeleinde.

Bereikbaarheid:
- Gelegen nabij uitvalswegen A12 en A13.
- Busstation Zoetermeer (Zorro-lijn) en metrostation Rotterdam / Den Haag op loopafstand.

Huurcondities:
Huurprijs:
€ 21.000,- per jaar.

Huurtermijn:
In overleg met verhuurder.

Huuringangsdatum:
In overleg.

Huurprijsherziening:
Jaarlijks op basis van de CPI-index van het CBS.

Huurbetaling:
Per maand vooruit.

Servicekosten:
Nader te bepalen.

Bankgarantie/waarborgsom:
Drie (3) maanden huur.

Huurovereenkomst:
Conform model ROZ.

BTW:
Verhuurder wenst niet te opteren voor BTW-belaste huur en verhuur. Ingeval huurder de BTW niet kan verrekenen zal de huurprijs worden verhoogd ter compensatie van de gevolgen van het vervallen van de mogelijkheid om te opteren voor BTW-belaste huur.

Kenmerken

Media

Locatie

Meer informatie?