Weg en Land 33a

2661DC Bergschenhoek

Beschikbaar

€ 2.500,- p/m

Omschrijving

ONDERNEMERS OPGELET! Immobilia presenteert deze zeer luxe, turnkey kantoorruimte gelegen op de begane grond en 1e verdieping van in totaal ca. 130m2. Geschikt voor verschillende doeleinden, eventueel volledig gemeubileerd te huur en centraal gelegen op bedrijventerrein Weg en Land in Bergschenhoek. Openbaar parkeren rondom.

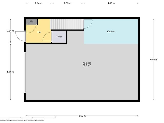
Begane grond:
Via de toegangsdeur binnenkomst in de hal. Via de hal toegang tot de kantoorruimte, het toilet en de trapopgang naar de 1e verdieping. Het toilet is volledig betegeld en uitgevoerd met een hangend toilet en een fonteintje. Prachtige kantoorruimte van ca. 58m2, volledig gestuukt en voorzien van een grijze gietvloer. Mooie ramenpartij aan de voorzijde van het pand. Aan de achterzijde is de luxe keuken gesitueerd, voorzien van diverse apparatuur, te weten een magnetron, koelkast en vaatwasser.

1e Verdieping.
Overloop met het toilet en toegang tot de kantoorruimte. Het toilet is volledig betegeld en uitgevoerd met een hangend toilet en een fonteintje. Lichte kantoorruimte van ca. 58m2 met een kabelgoot over een groot gedeelte van de muren. Aan de voorzijde is de keuken/pantry gesitueerd. Uitgevoerd in het grijs en voorzien van een magnetron, koelkast en vaatwasser.

Voorzieningen:
- Voorzien van een alarminstallatie.
- Zuinige LED-verlichting door het gehele kantoor.
- Twee aparte toiletten voorzien van een hangend toilet en een fonteintje.
- Cv-ketel / verwarming.

Huurspecificaties:
Huurprijs:
€ 30.000,- per jaar excl. btw.

Huurtermijn:
In overleg met verhuurder.

Huuringangsdatum:
Beschikbaar per direct.

Huurprijsherziening:
Jaarlijks op basis van de CPI-index van het CBS.

Huurbetaling:
Per maand vooruit.

Nutsvoorzieningen:
Huurprijs excl. G/W/L

Servicekosten:
N.v.t.

Bankgarantie/waarborgsom:
Drie (3) maanden huur excl. btw.

Huurovereenkomst:
Conform model ROZ.

Btw:
Excl. 21% btw. Verhuurder wenst te opteren voor Btw-belaste huur en verhuur. Ingeval huurder de btw niet kan verrekenen zal de huurprijs worden verhoogd ter compensatie van de gevolgen van het vervallen van de mogelijkheid om te opteren voor Btw-belaste huur.

Kenmerken

Media

Locatie

Meer informatie?