Julianastraat 2l

2651DP Berkel En Rodenrijs

Verkocht onder voorbehoud

€ 500.000,- k.k.

Omschrijving

IN PRIJS VERLAAGD! Immobilia presenteert een speels ingedeeld 3-kamer appartement met een eigen parkeerplaats en berging op een afgesloten terrein en gelegen op de TOP-verdieping! Vanwege het hoogteverschil in het plafond met een maximum van 3 meter hoogte, voelt het ruim aan. Het appartement is gelegen op de tweede verdieping in een kleinschalig modern appartementencomplex met lift. Vanwege de ligging midden in het centrum van Berkel en Rodenrijs tref je op loopafstand winkels, restaurants en openbaar vervoer.

Begane grond:
Nette, keurig onderhouden entree met het bellentableau met brievenbussen, lift en trappenhuis.

2e Verdieping:
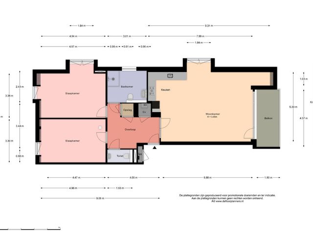
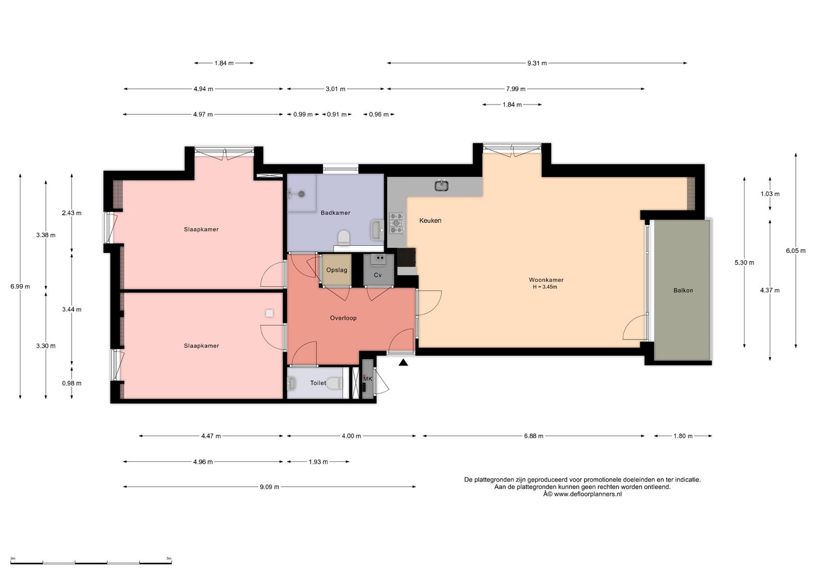
Ruime entree met toegang tot alle vertrekken. Royale living van ca. 43m2 voorzien van Frans balkon, klein nisje en gezellige open haard. Tevens beschikt de woonkamer over een airco unit. De half open keuken in L-opstelling is uitgevoerd in het wit en voorzien van een 5-pits gaskookplaat, afzuigkap, spoelbak, vaatwasser, koelkast en combioven.
Vanuit de woonkamer via een deur toegang tot het zonnige balkon van ca. 8m2 gelegen op zuid/zuidwest. Vanaf het balkon is er een prachtig uitzicht op de kerk.

De twee slaapkamers zijn gelegen aan de voorzijde van het appartement. De slaapkamers zijn ca. 17 en 19m2 en beschikken beide over een Frans balkon. De nette badkamer is uitgevoerd met een inloopdouche, wastafelmeubel en hangend toilet. De gehele badkamer is volledig betegeld en beschikt over een te openen raam. Het aparte toilet is eveneens volledig betegeld en is uitgevoerd met een hangend toilet en een fonteintje.

De bergkast met aansluiting voor wasmachine en wasdroger is net als de aparte bergkast met opstelling CV vanuit de hal bereikbaar. De vliering zorgt voor extra opbergruimte.

Bijzonderheden:
- Energielabel B.
- Actieve VvE.
- Eigen parkeerplaats plus houten berging op een afgesloten terrein (te bereiken via elektrisch afgesloten hek).
- Licht en speels appartement gelegen in hartje Berkel en Rodenrijs.
- Ruime inpandige berging.

Rechtsgeldige koopovereenkomst pas ná ondertekening:
Een mondelinge overeenstemming tussen de particuliere verkoper en de particuliere koper is niet rechtsgeldig. Met andere woorden: er is geen koop. Er is pas sprake van een rechtsgeldige koop als de particuliere verkoper én de particuliere koper de koopovereenkomst hebben ondertekend. Dit vloeit voort uit artikel 7:2 Burgerlijk Wetboek. Een bevestiging van de mondelinge overeenstemming per e-mail of een toegestuurd concept van de koopovereenkomst wordt niet gezien als een ‘ondertekende koopovereenkomst’.

Toelichting NEN 2580:
De meetinstructie is gebaseerd op NEN 2580. De meetinstructie is bedoeld om een meer eenduidige manier van meten toe te passen voor het geven van een indicatie van de gebruiksoppervlakte. De meetinstructie sluit verschillen in meetuitkomsten niet volledig uit, door bijvoorbeeld interpretatieverschillen, afrondingen of beperkingen bij het uitvoeren van de meting. Bijgevoegde plattegronden zijn ingemeten volgens de meetinstructie.

Alle verstrekte informatie moet beschouwd worden als een uitnodiging tot het doen van een bod of om in onderhandeling te treden. Er kunnen geen rechten worden ontleend aan deze informatie.

Kenmerken

Overdracht

Vraagprijs
€ 500.000 k.k.
Aangeboden sinds
15 juli 2025
Status
Verkocht onder voorbehoud
Aanvaarding
In overleg
Bijdrage VvE
€ 293,00 per maand

Bouw

Soort woning
Appartement
Soort appartement
Portiekflat
Bouwjaar
2005
Soort dak
Samengesteld dak

Oppervlakten en inhoud

Oppervlakte wonen
102 m²
Oppervlakte gebouwgebonden buitenruimte
8 m²
Oppervlakte externe bergruimte
5 m²
Inhoud
380 m³

Indeling

Aantal kamers
3
Aantal slaapkamers
2
Aantal woonlagen
1
Gelegen op
2
Voorzieningen
Mechanische ventilatie, frans balkon, tv-kabel, glasvezel kabel en lift

Energie

Energielabel
B
Isolatie
Volledig geïsoleerd
Verwarming
Cv-ketel
Warm water
Cv-ketel

Bergruimte

Schuur/berging
Vrijstaand hout

Garage

Soort garage
Parkeerplaats

Parkeergelegenheid

Soort parkeergelegenheid
Openbaar parkeren

Vereniging van Eigenaren

Inschrijving KvK
Ja
Jaarlijkse vergadering
Ja
Periodieke bijdrage
Reservefonds aanwezig
Ja
Onderhoudsplan
Ja
Opstalverzekering
Ja

Media

Locatie

Meer informatie?